Altes Bauernhaus in Lohbrügge, Hamburg
Bestandszeichnung, neue Planung des DG & Ansichten eines alten Bauernhofes



Mittelreihenhaus in Barmstedt, Schleswig - Holstein
Bestandszeichnungen des EG & DG


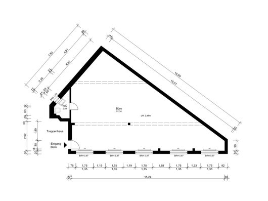
Neue Planung eines ehemaligen Büros in Hamm, Hamburg
Bestandszeichnungen und die neue Planung


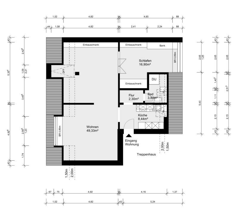
Bestandszeichnungen in Rotherbaum, Hamburg
1. OG & DG eines Mehrfamilienhauses


Bestandszeichnungen eines Einfamilienhaus in Hemdingen, Schleswig - Holstein
Bestandszeichnungen EG & DG


Erstelle deine eigene Website mit Webador